m8architekten
christian winter
mia winter
partmbB
parzivalstraße 25
80804 münchen
t +49.89.321 64 98.40
f +49.89.321 64 98.59
| Konzept | Hilfe zur Selbsthilfe |
|---|---|
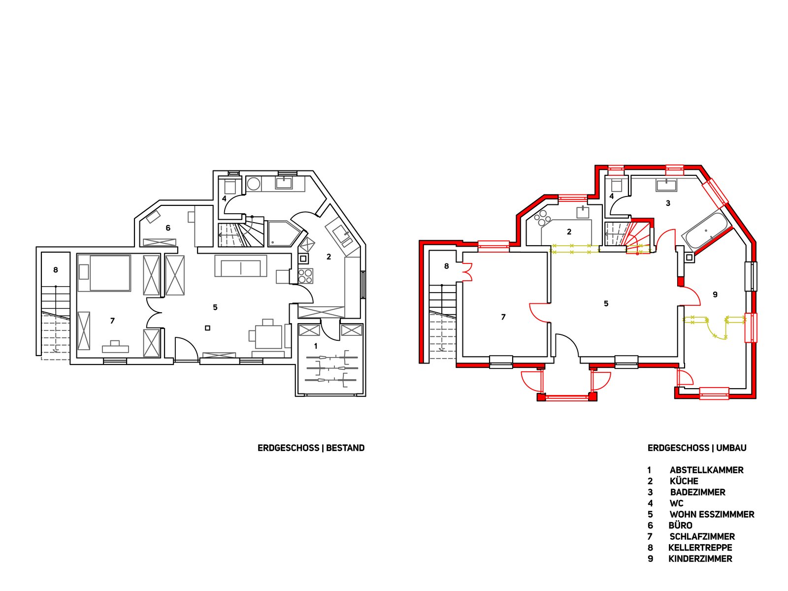
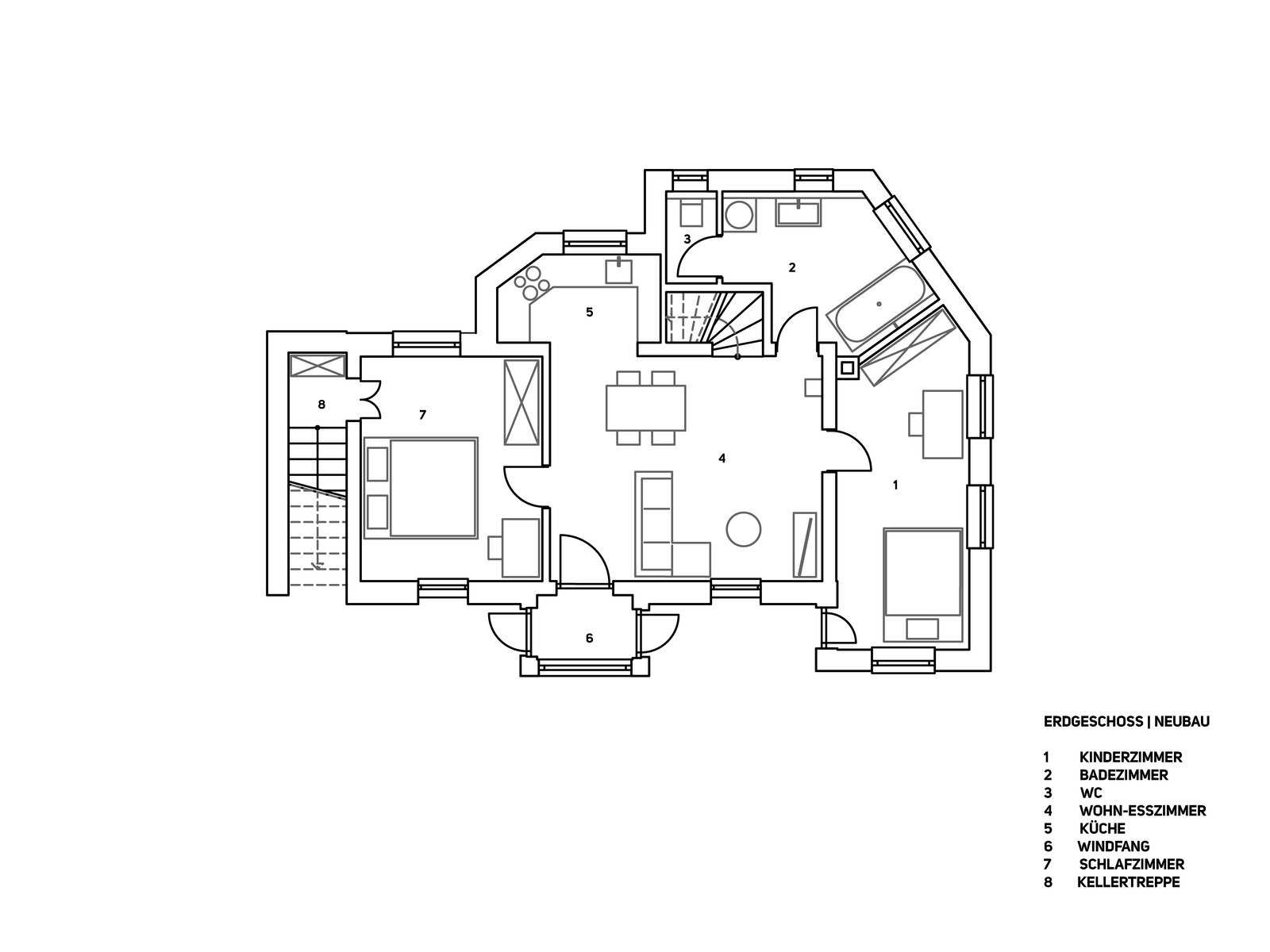
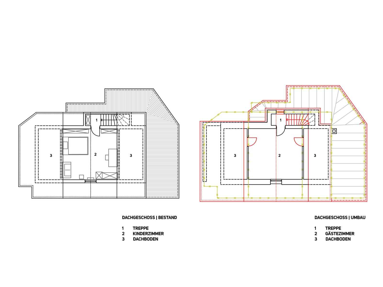
| Programm | Wohnen |
| Bauherr | privat |
| Fläche | 80 qm |
| Baujahr | 1950 |
| Umbau | 2024 |
| Standort | München |
| Architektenteam | m8architekten |
Bei diesem Projekt arbeitete unser Büro gemeinsam mit der Bauherrin aktiv auf der Baustelle. Die fachliche Anleitung erfolgte durch unser Team und bildete die Grundlage für das Verständnis von „Hilfe zur Selbsthilfe“.
„Hilfe zur Selbsthilfe“ bedeutet, dass die zukünftigen Bewohner aktiv am Bau ihres eigenen Hauses mitwirken. Unter Anleitung von Fachleuten übernehmen sie klar definierte Aufgaben, für die keine Vorerfahrung auf der Baustelle nötig ist.
Durch diese gemeinsame Mitarbeit können Baukosten reduziert und gleichzeitig neue Fähigkeiten vermittelt werden. Das Konzept stärkt die Selbstständigkeit der Bauherren, fördert Gemeinschaft und ermöglicht es jedem, über sich hinauszuwachsen und aktiv an der Entstehung des eigenen Zuhauses teilzuhaben.
m8architekten
christian winter
mia winter
partmbB
parzivalstraße 25
80804 münchen
t +49.89.321 64 98.40
f +49.89.321 64 98.59