m8architekten
christian winter
mia winter
partmbB
parzivalstraße 25
80804 münchen
t +49.89.321 64 98.40
f +49.89.321 64 98.59
| Programm | Wohnen, Werkstatt, Musikschule, Boxen, Kampfsport, Kulturräume, Dachgarten, Lagerräume |
|---|---|
| Standort | Bayreuth |
| Jahr | 2025 |
| Fläche gesamt | über 5000 qm |
| Wohnfläche | ca. 3150 qm |
| Gewerbefläche | ca. 2000 qm |
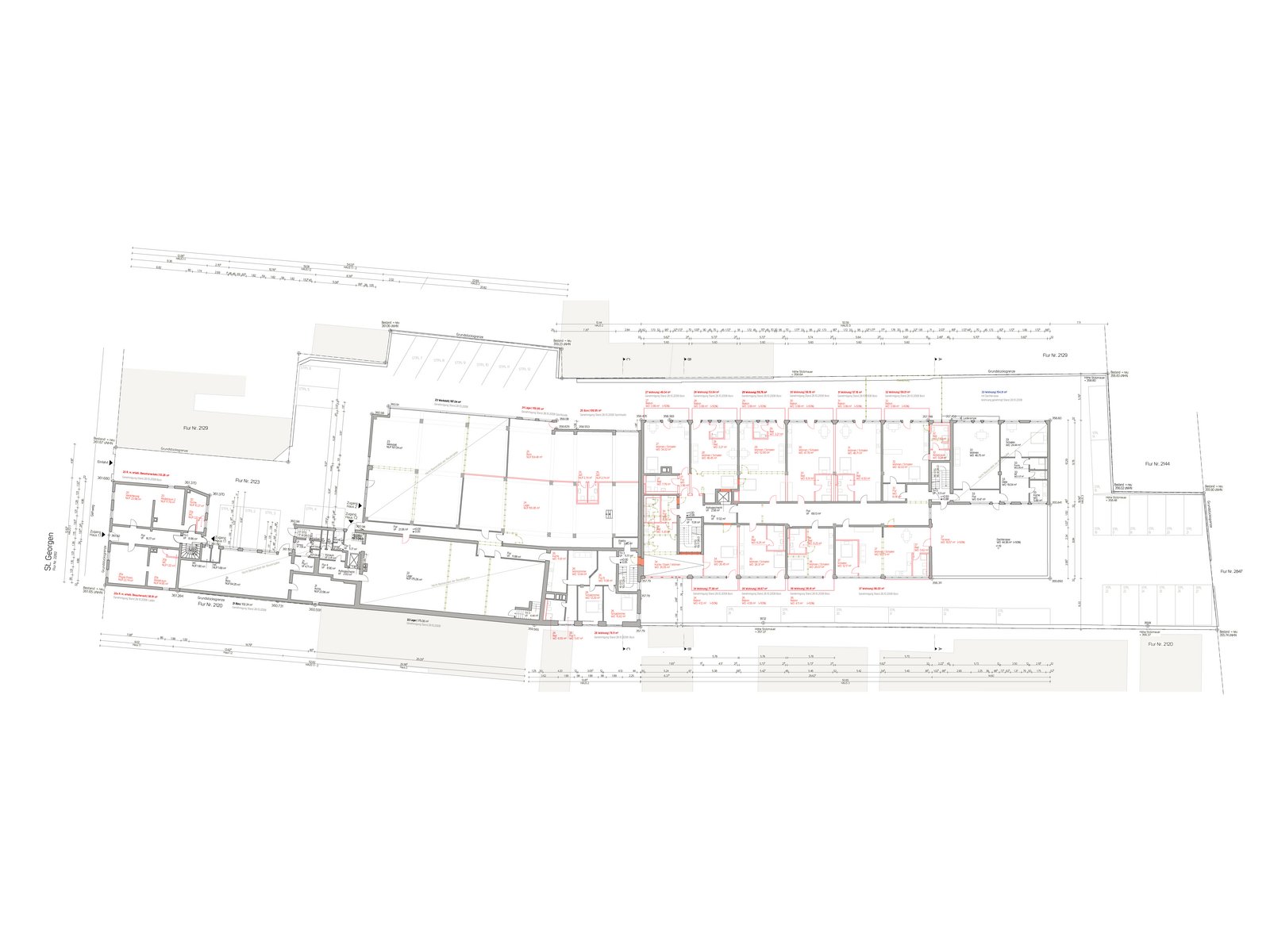
Der Industriestandort in Bayreuth mit seiner vielschichtigen Geschichte bildet einen bedeutenden innerstädtischen Ort mit hohem Entwicklungspotenzial. Auf über 5.000 qm wird das Areal im Rahmen einer schrittweisen Revitalisierung behutsam modernisiert und zu einer vielfältigen Mischung aus Wohnen, Arbeiten und Kultur umgenutzt. Grundlage dafür ist eine präzise Bestandserfassung mit dem 3D Scanner.
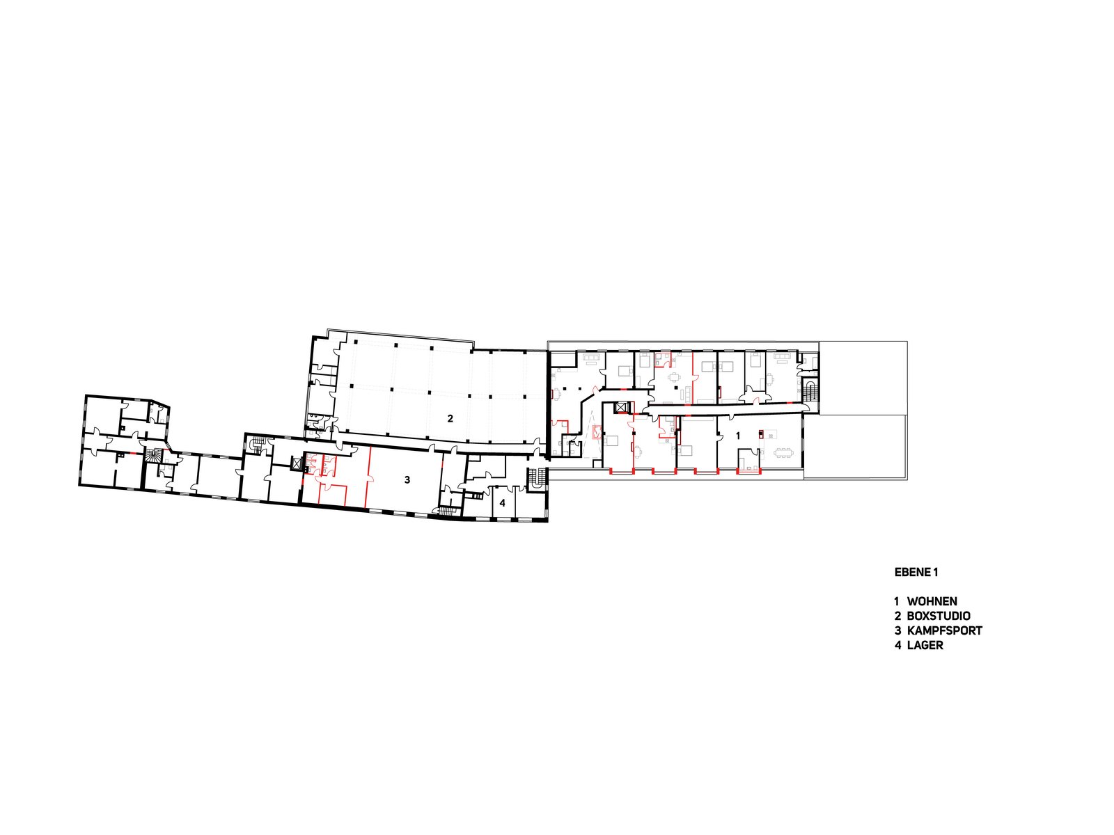
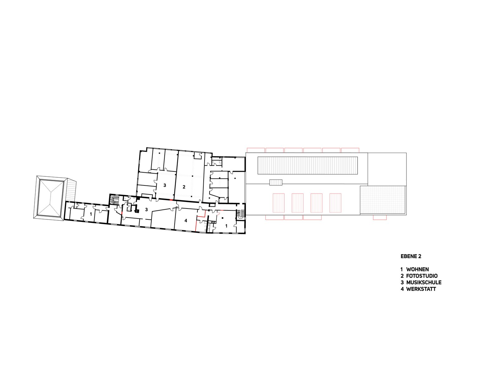
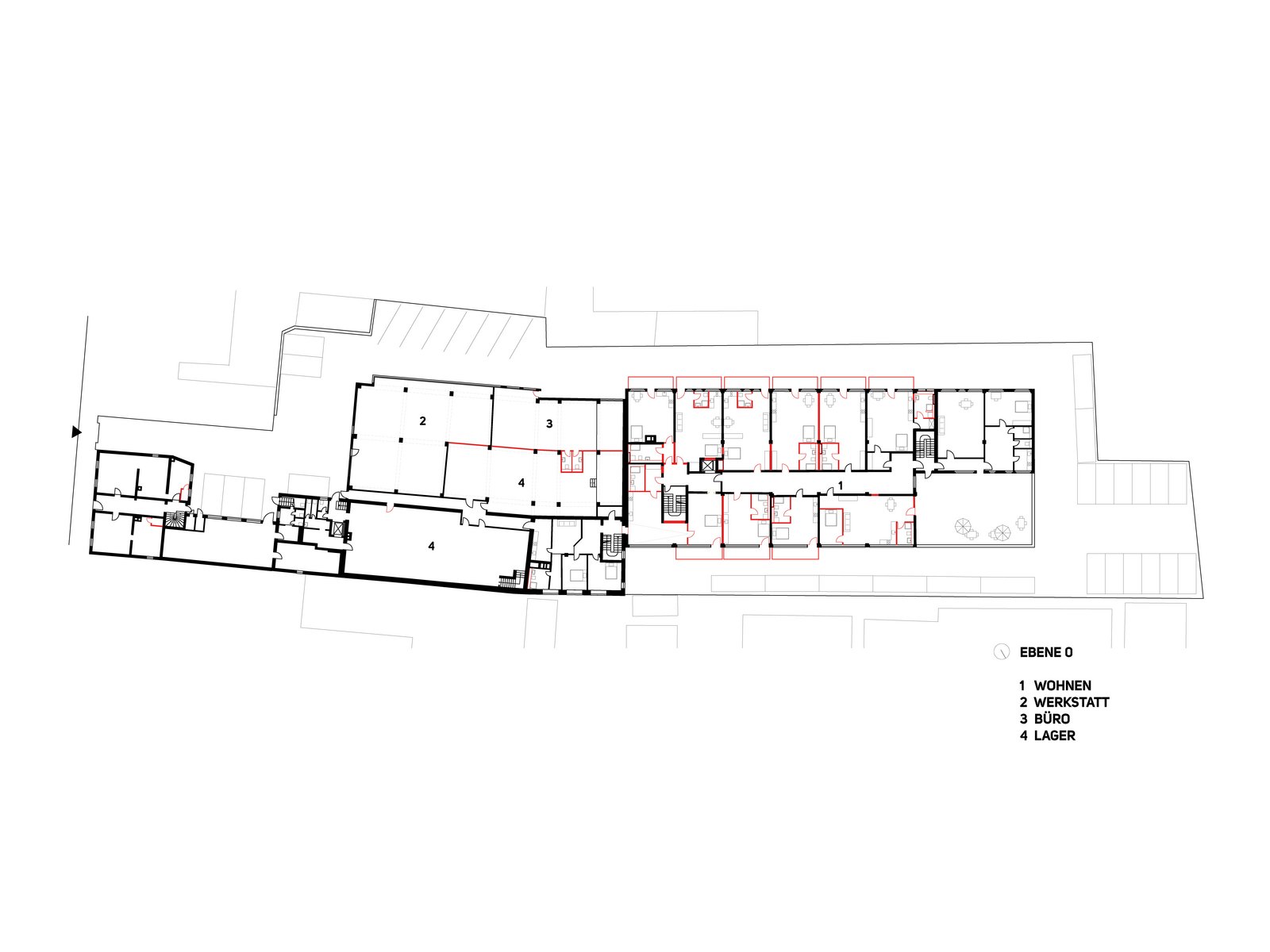
Wohnen, Werkstatt, Kampfsport und weitere Angebote unter einem Dach
Wohnen - Die Umnutzung bietet neue, großzügige Dachgauben, die zusätzlichen Wohnraum innerhalb der historischen Fabrikstruktur schaffen.
Box- & Kampfsportstudio - Die vorhandenen Box- und Kampfsportbereiche bleiben in ihrer Grundstruktur erhalten und werden behutsam modernisiert. Sie nutzen die kraftvollen, offenen Raumgeometrien des Bestands und tragen zu einer kontinuierlichen Belebung des Standorts im täglichen Betrieb bei.
Musikschule & Ateliers - Kreativ- und Proberäume werden gestärkt und weiterentwickelt. Sie bieten Kunst- und kulturschaffenden Raum für Produktion, Austausch und neue Impulse.
Fotostudio - Die industriell geprägten Räume mit ihrem charakteristischen, gleichmäßigen Licht eignen sich in besonderer Weise für fotografische Arbeiten. Das bestehende Fotostudio übersetzt diese Qualitäten in eine ruhige, präzise Arbeitsumgebung.
Dachgarten - Bepflanzte Aufenthaltsbereiche bieten Raum zum Verweilen, während ein kleines Basketballfeld zusätzliche Möglichkeiten für Bewegung und Begegnung schafft.
Lager & Werkstatt - Funktionale Bereiche mit direkter Erschließung bieten Platz für Handwerk, Material und Produktion und unterstützen die alltäglichen Prozesse auf dem Gelände.
Der historische Industriestandort wurde außerdem präzise mit dem 3D Scanner vermessen und digital erfasst. Diese Bestandsaufnahme bildete die Grundlage für die Weiterentwicklung. Klicke hier, um die 3D Scans anzuschauen.
m8architekten
christian winter
mia winter
partmbB
parzivalstraße 25
80804 münchen
t +49.89.321 64 98.40
f +49.89.321 64 98.59